Your privacy is important to us. This website uses cookies to enhance user experience and to analyze performance and traffic on our website. By using this website, you acknowledge the real-time collection, storage, use, and disclosure of information on your device or provided by you (such as mouse movements and clicks). We may disclose such information about your use of our website with our social media, advertising and analytics partners. Visit our Privacy Policy and California Privacy Disclosure for more information on such sharing.

Log In

Our Brands

Helpful Tools

Search

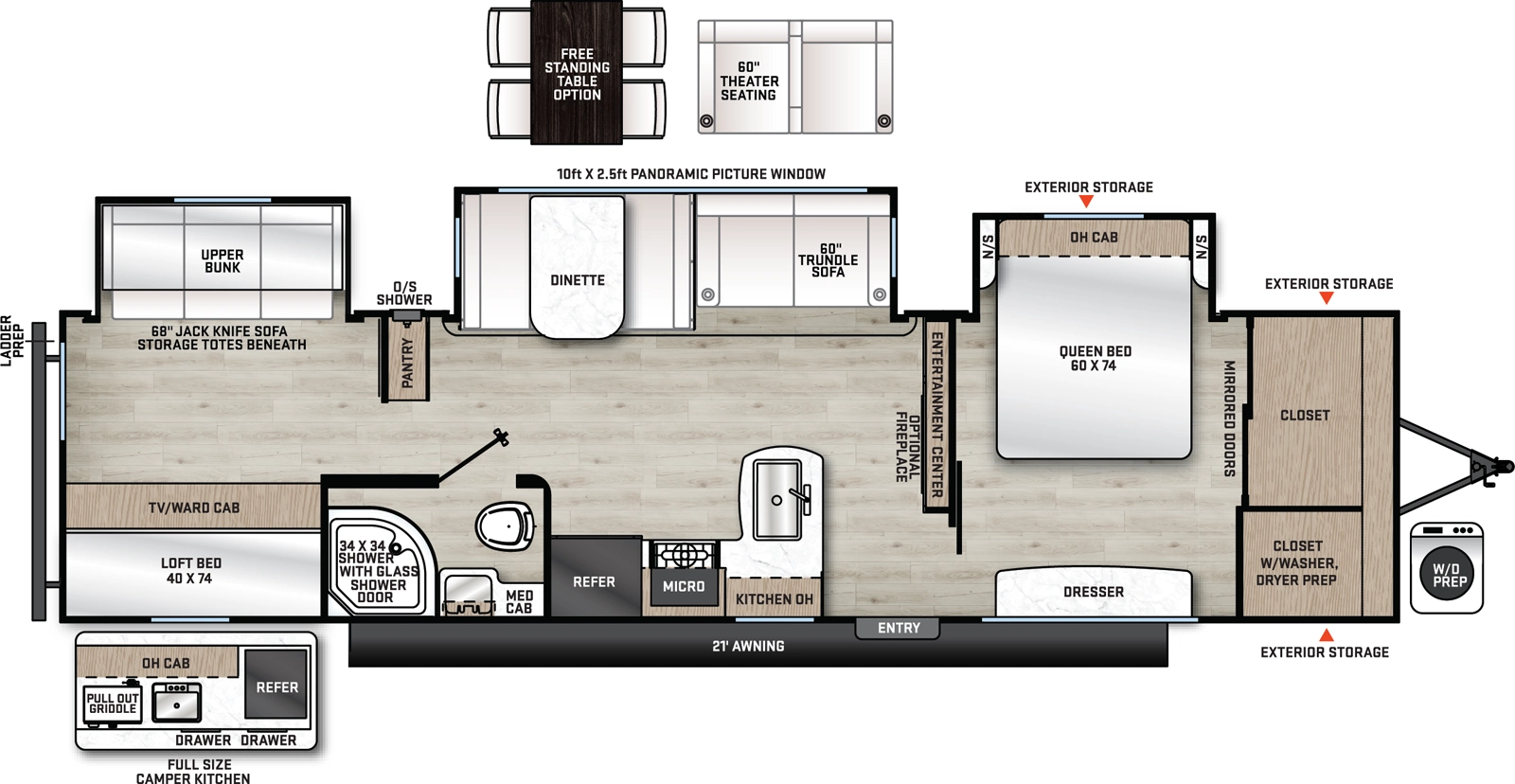
Explore 2026 Aurora Travel Trailers 34BHTS Floorplan

Built for large groups or multi-generational trips. Full bunkhouse and strong cargo capacity allow for loaded adventures. Durable frame and construction provide confidence for both boondocking and campground stays.

Hitch Weight
1,310 lb.
GVWR
10,652 lb.
UVW
9,152 lb.
CCC
1,500 lb.
Exterior Length
37' 10"
Exterior Height
11' 3"
Exterior Width
96"
Fresh Water
44 gal.
Gray Water
70 gal.
Black Water
30 gal.
Awning Size
21'

34BHTS Floorplan Aurora Travel Trailers Features & Options

    • 15,000 BTU GE Ducted A/C w/ Heat Pump
    • Solid Surface Countertops in Kitchen Galley (No T-Mold)
    • GE 60K BTU Tankless Water Heater
    • Norco Electromagnetic, Powder Coated Chassis
    • 6'9" Interior Height on Tandem Axles
    • Screwed Cabinet Construction w/ Pocket Bored Lumber Core Stiles
    • 5/8" Tongue & Groove Flooring
    • 5/8" Plywood Bed Base, Dinette Base, Backers in Walls, & Shower Base
    • Full Length Frame E-Coated Outriggers
    • 2'X3' Floor Joists on Approximately 12" Centers w/ Horizontal Support Studs
    • 5" Floor To Frame Steel Lag Bolts
    • Darco Subfloor Protective Wrap
    • Seamless Roof Membrane w/ Limited Lifetime Warranty
    • Water Heater By-Pass Winterization Kit
    • 12V Demand Water Pump
    • 35,000 BTU Furnace w/ 2 Year Warranty
    • Smooth Aluminum Radius Front
    • 10 Ft. Slideout Window
    • Front Radius Lights
    • Safe-T Rail Door Assist on Main Entry Door
    • Rear Ladder Prep
    • Enclosed, Fully Sealed Underbelly
    • Friction Hinge Entry Door
    • SolidStep Entrance Steps IPO Flip-Down Steps
    • Universal Solar Prep w/ Roof & Charge Controller Connections & Wiring
    • Siphon 360 Roof Vent
    • Power Tongue Jack
    • Magnetic Baggage Door Latches
    • Upgraded JBL Elite Exterior Speakers
    • Electric Awning w/ Multicolor Lights and Remote (16 Colors)
    • Battery Disconnect
    • Outside Hot/Cold Shower w/ Hands Free Holder
    • Black Tank Flush
    • Aluminum Sport Wheels
    • Nitrogen Filled Radial Tires
    • Polished Aluminum Fender Skirts
    • Leash Link D-Ring Hookup
    • Exterior 110V GFCI Protected Receptacle
    • Exterior RG-6 Coax Cabling and Satellite Prep
    • G20 Privacy Tinted Windows
    • Two 20 lb. LP Tanks w/ ABS Bottle Cover
    • Spare Tire
    • Rear View Camera Prep
    • Diamond Plate Rock Guard
    • Rain Gutters w/ Drip Spouts
    • LP Quick Connect w/ Camp Kitchen
    • Blackstone Griddle in Camp Kitchens
    • Full Size Exterior Camp Kitchen (32BDS & 34BHTS)
    • Bottle Opener (Exterior Camp Kitchens)
    • Flush Mount Baggage Doors w/Radius Corners
    • Full GE Kitchen Suite
    • Solid Surface Countertops in Kitchen Galley (No T-Mold)
    • 12V 2-Way Maxxair Vent Fan in Living Room w/ Wall Remote
    • 39" or Larger Smart TV (FP Dependent)
    • Porcelain Pedestal Toilet
    • Trundle Sofa IPO Jackknife Sofa (Per Floorplan)
    • Stainless Steel Drying Rack
    • All-In-One Control Panel w/ Dimmer Switch
    • Kitchen Sink Glass Rinser
    • Carpetless Unit w/ Lino in Slide-Out
    • JBL Entertainment Package
    • Paper Towel Holder
    • GE 10.7 Cu. Ft. 12V Refrigerator
    • GE Stainless 3 Burner Gas Range
    • GE Stainless Microwave
    • 12V USB in Kitchen
    • Pull Down Kitchen Faucet
    • ABS Tub/Shower Surround
    • Skylight Above Tub/Shower
    • Easy Access Booth Dinette Storage Doors
    • LED Interior Lighting
    • Bedroom USB Surface Mounts (2)
    • USB Surface Mount Near Bunk Beds
    • Decorative Fitted Bedsheet
    • Deep Undermount Farm Style Sink
    • Silverware Kitchen Drawer
    • Shower/Coat Hooks
    • Pedestal Thermofoil Dinette Table
    • Black Night Shades
    • Hard Valance Window Treatment w/ Decorative Lambrequins
    • 12V Power Vent Fan in Bathroom
    • Medicine Cabinet w/ Mirror
    • Bathroom Mirror on Aurora Light
    • Bunkroom Jackknife Sofa (29QBS, 32BDS, & 34BHTS)
    • Solid Bunk Room Door
    • Solid Master Bedroom Door
    • Mirrored Wardrobes in Master Bedroom (N/A Bed Slide Models)
    • Underbed Storage w/ Separation from Outside Front Storage
    • Washer/Dryer Prep (24RBS, 31KDS, 32BDS, 34BHTS)
    • Toothbrush and Soap Holder in Bathroom
    • Power Theater Seating IPO Trundle Sofa (Standard in 32RLTS)
    • Peak Performance Solar Package - 30A Controller w/ 200W Solar Panel
    • 30" Built in Fireplace
    • Free-Standing Table w/ 4 Chairs (N/A U-Dinette Floorplans)
    • 7 cu. ft. Gas/Electric Refrigerator
    • 50 Amp Service w/ Second A/C Prep (N/A 24RBS & 28BHS)
    • 50 Amp Service w/ Second 13.5 A/C (N/A 24RBS & 28BHS)
    • 50 Amp Service with (3) Non-Ducted 18K BTU Furrion High Efficiency A/Cs with Heat Pumps (N/A 24RBS, 28BHS, 26FKDS)
    • Stackable Washer/Dryer (31KDS, 32RLTS, 32BDS, 34BHTS)
    • 2nd Queen Bed IPO Bunkroom & Camp Kitchen (34BHTS Only)
    • Ramp Door Patio Package (Toy Haulers)
    • Two (2) Pushback Recliners (26ATH)
    • Fuel Station w/ 30 Gallon Fuel Tank (29ATH)
    • Smoke Alarm
    • LP/CO Gas Detector
    • Fire Extinguisher
    • Fire Escape Windows
    • Entrance Door Window
    • Dead-Bolt Lock on Entry Door